Dự án EB-5 Rural - TerraVi Yosemite, khu nghỉ dương cao cấp tại California
Groveland, California
21,098,000,000 VNĐ
KHU NGHỈ DƯỠNG
Chia sẻ1
1
30 m²
Mô tả
Dự án EB-5 Terra Vi Yosemite – Lợi thế Rural hiếm có, ưu tiên visa riêng
Terra Vi Yosemite là dự án EB-5 thuộc khu vực Rural, đáp ứng tiêu chí ưu tiên visa theo quy định mới của chương trình EB-5 Hoa Kỳ. Điều này giúp nhà đầu tư và gia đình được xét hồ sơ nhanh hơn, giảm đáng kể thời gian chờ đợi so với các dự án không thuộc Rural.
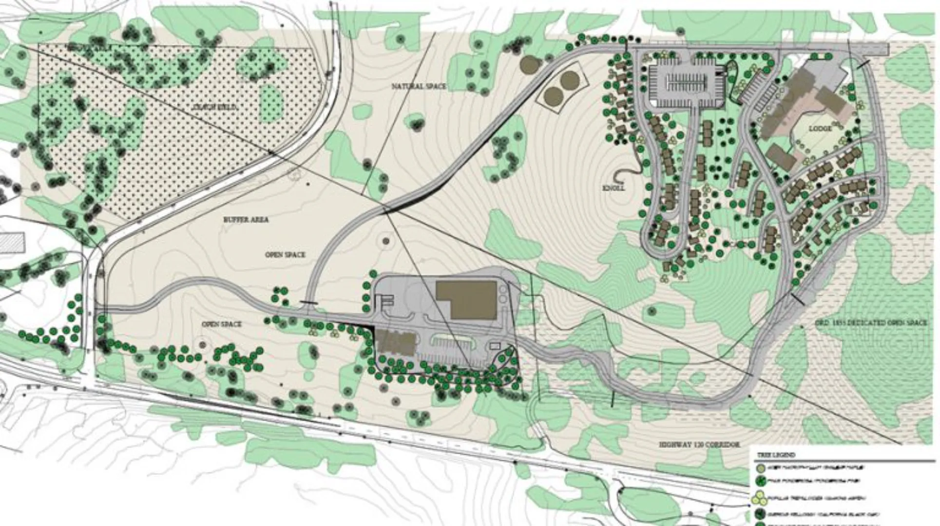
Dự án tọa lạc tại Groveland, California – cửa ngõ dẫn vào Vườn quốc gia Yosemite, một trong những điểm du lịch nổi tiếng bậc nhất nước Mỹ, thu hút hàng triệu lượt khách mỗi năm. Vị trí này tạo nền tảng vững chắc cho khả năng khai thác du lịch – nghỉ dưỡng dài hạn, đồng thời gia tăng tính bền vững cho dự án.
Cấu trúc đầu tư EB-5 an toàn - Khoản vay ưu tiên hoàn trả, thế chấp toàn bộ dự án
Terra Vi Yosemite được thiết kế theo mô hình khoản vay EB-5 ưu tiên hoàn trả đầu tiên, giúp giảm thiểu rủi ro cho nhà đầu tư.
Toàn bộ khoản vay được thế chấp bằng tổng giá trị dự án, tạo lớp bảo vệ quan trọng cho dòng vốn EB-5.
- Thời gian hoàn trả dự kiến: 3 năm ++
- Tình trạng pháp lý: Đã được cấp phép xây dựng đầy đủ
- Tiến độ: Dự án đang trong giai đoạn xây dựng
Cấu trúc này đáp ứng tốt các tiêu chí mà nhà đầu tư EB-5 quan tâm: an toàn vốn – minh bạch – khả năng hoàn vốn rõ ràng.
Chủ đầu tư & Trung tâm Vùng uy tín
Dự án được phát triển bởi đơn vị có hơn 45 năm kinh nghiệm, với năng lực triển khai các dự án quy mô lớn trong lĩnh vực bất động sản và nghỉ dưỡng tại Hoa Kỳ.
Trung tâm Vùng Green Card Fun tham gia dự án sở hữu hơn 15 năm kinh nghiệm trong chương trình EB-5, cùng lịch sử hoàn trả vốn EB-5 thực tế, là yếu tố then chốt giúp củng cố niềm tin cho nhà đầu tư.
Đặc biệt, Terra Vi Yosemite đã có các nhà đầu tư EB-5 tại Việt Nam tham gia, cho thấy mức độ quan tâm và đánh giá tích cực của thị trường đối với dự án này.
Chi tiết
Diện tích
30 m²
Số phòng ngủ
1
Số phòng tắm
1
Nội thất
Đầy đủ
Pháp lý
Hợp đồng mua bán

Green Card Fund Vietnam











