Dự án EB-5 Terra Vi Yosemite – Rural hiếm, ưu tiên visa theo luật mới
Groveland, California
21,101,000,000 VNĐ
CĂN HỘ
Chia sẻ1
1
31 m²
Mô tả
Tổng quan dự án EB-5 Terra Vi Yosemite
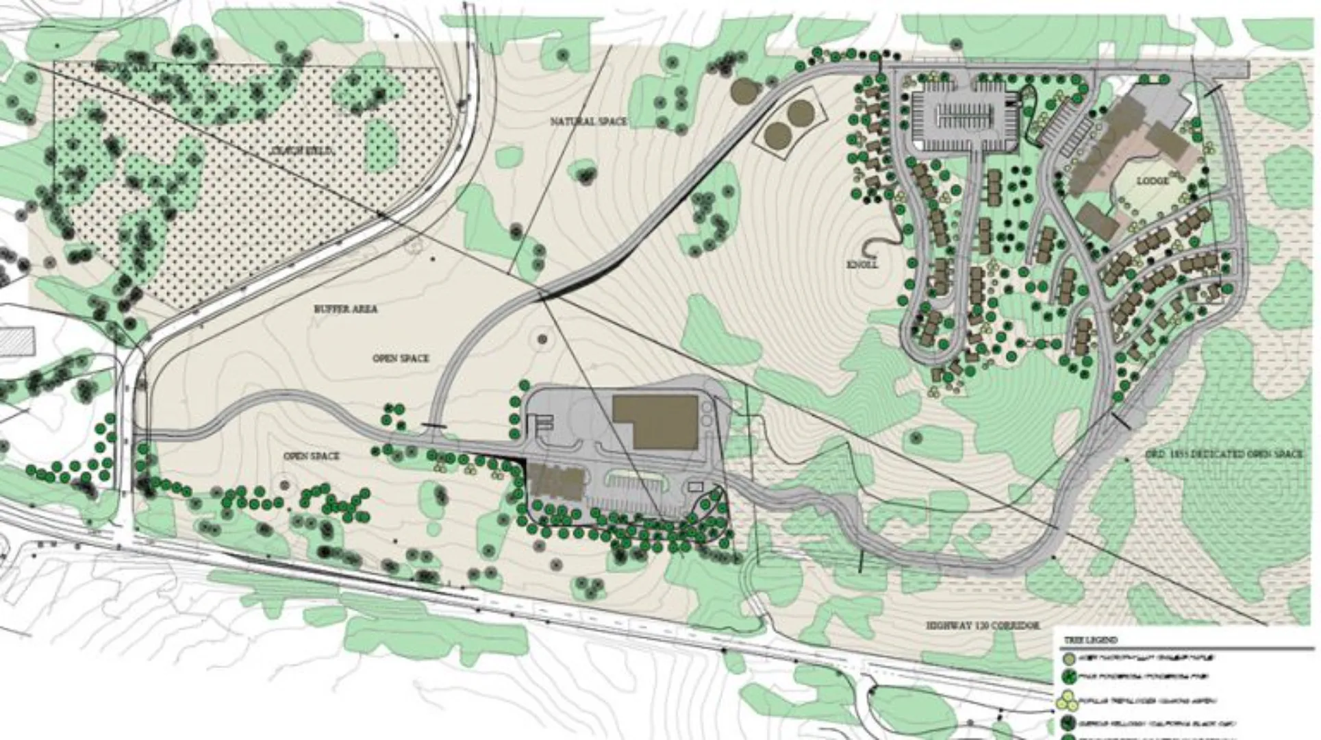
Terra Vi Yosemite là dự án EB-5 thuộc khu vực Rural, nhóm dự án được ưu tiên visa riêng theo chương trình EB-5 hiện hành. Đây là lợi thế quan trọng giúp hồ sơ của nhà đầu tư được xét nhanh hơn, giảm áp lực chờ đợi so với các dự án không thuộc Rural.
Điểm nổi bật về vị trí:
- Nằm tại Groveland, California
- Khu vực cửa ngõ vào Vườn quốc gia Yosemite
- Một trong những điểm du lịch nổi tiếng nhất tại California
- Lượng khách ổn định quanh năm, phù hợp phát triển khu nghỉ dưỡng cao cấp
Vị trí du lịch chiến lược giúp dự án có khả năng vận hành thực tế, không phụ thuộc vào kỳ vọng ngắn hạn.
Cấu trúc đầu tư EB-5 - Ưu tiên hoàn trả – thế chấp toàn dự án
Terra Vi Yosemite được xây dựng theo mô hình khoản vay EB-5 ưu tiên hoàn trả đầu tiên, tập trung bảo vệ dòng vốn của nhà đầu tư.
Thông tin cấu trúc vốn:
- Khoản vay EB-5 Terra Vi Yosemite: Ưu tiên hoàn trả đầu tiên
- Thời gian hoàn trả dự kiến: 3 năm ++
- Tài sản bảo đảm: Thế chấp bằng tổng giá trị dự án
- Pháp lý: Đã có giấy phép xây dựng đầy đủ
- Tiến độ: Đang triển khai xây dựng
Cấu trúc này phù hợp với nhà đầu tư EB-5 ưu tiên an toàn – minh bạch – lộ trình hoàn vốn rõ ràng.
Vì sao nên đầu tư dự án TerraVi Yosemite?
- Rural TEA – Ưu tiên visa EB-5, gần Vườn quốc gia Yosemite (4+ triệu du khách/năm)
- Đội ngũ giàu kinh nghiệm, chủ đầu tư & Trung tâm Vùng chuyên hotel và EB-5
- Pháp lý đầy đủ – tiến độ rõ ràng, đã có giấy phép xây dựng, dòng tiền kỳ vọng tốt
- Cấu trúc vốn an toàn, khoản vay EB-5 ưu tiên hoàn trả, có cam kết hoàn vốn
Kyle Walker, người sáng lập và giám đốc điều hành của Green Card Fund, trình bày dự án Terra VI Yosemite của họ “Terra Vi Yosemite kết hợp vẻ đẹp thiên nhiên, lòng hiếu khách và các nguyên tắc đầu tư vững chắc. Dự án được thiết lập để định nghĩa lại sự sang trọng giữa lòng thiên nhiên, chỉ cách Công viên quốc gia Yosemite vài phút. Dự án rộng hơn 64 mẫu Anh này mang đến trải nghiệm thiên nhiên đắm chìm với khu nghỉ dưỡng hiện đại gồm 65 phòng, nơi mọi chi tiết đều tôn lên vẻ đẹp xung quanh của Yosemite".
Chi tiết
Diện tích
31 m²
Số phòng ngủ
1
Số phòng tắm
1
Nội thất
Đầy đủ
Pháp lý
Hợp đồng mua bán

Green Card Fund Vietnam











